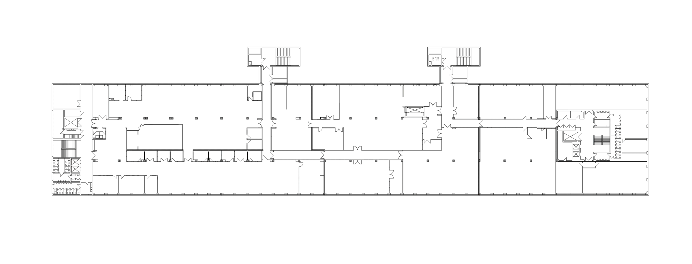
Pro Glove Office & Production
Projekt, Direktauftrag
Ort
München, DE
Bauherr
Workaround GmbH
Leistung
Objektplanung, LP 1-8
Zeitraum
2018
BGF
ca. 4.200 m²
FunktionProduktionsflächen, Umbau
Openspace Büroflächen, Besprechnung, Werkstatt, Produktion, Logistik, Common Room, Kantine
Status
Fertiggestellt



